облачность, ветер: 3 м/c, ЮЗ, давление: 2 мм рт.ст., влажность: 33% -15°
Сделать стартовой

Продам 2-комнатную квартиру

Объявление № 5171726    
Квартира

Количество комнат  2
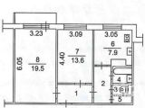
Общая площадь  55.3 кв.м
жилая  33.1 кв.м
кухня  7.9 кв.м
Этаж/этажность  2/9
Санузел  раздельный
Балкон/лоджия  балкон, остекление
в здании

Сергея Лазо 28  (3)  Показать на панораме
Октябрьский район
Этажность  9
Год постройки  1981
Вид  вторичное
Есть пластиковые окна.
Описание

В продаже 2к квартира по адресу: ул.С.Лазо д.28 Квартира расположена на комфортном 2м этаже, 9и этажного панельного дома. Общ.пл. 55, 3 м2 (это без учета застекленного балкона) Комнаты и санузел раздельные. Есть вместительная гардеробная. Квартира светлая, требует только оклейки обоев, стены выровнены. Новым собственникам остается кухонный гарнитур, электрическая плита, бойлер и кровать. Квартира освобождена. Квартира без обременений, перепланировок. Задать вопросы и записаться на просмотр по телефону.
Карта     Показать панораму

Уменьшить
Увеличить
Условия

5 700 000 руб.
  (103 070 руб. за м2). Ипотека. Материнский капитал.

Контактная информация

Контактное лицо: Анастасия Олеговна

Телефон:

Агентство недвижимости "Лагуна"

Объявление № 5171726     Статистика

Опубликовал: an_laguna
Опубликовано: 08 декабря 2025
Истекает: 29 января 2026
Статус: Опубликовано Опубликовано
Поделиться

Похожие варианты (10) На карте

2-комнатную
квартиру
Сергея Лазо 34  (1)  Показать на панораме
Октябрьский район
кирпич
Год постройки:1992
8 этаж
9 всего
51 м2
31 м2 жилая
7 м2 кухня
5650 т.р.
110.78 за м2
Поднять объявление Авторизуйтесь, чтобы добавить в избранное Авторизуйтесь, чтобы оставить заметку Авторизуйтесь, чтобы отправить объявление по почте Поделиться ссылкой
03 декабря 2025.     КОНТАКТ: Татьяна     ТЕЛ: .     Жилфонд
2-комнатную
квартиру
Ивана Черных 50  (2)  Показать на панораме
Октябрьский район
монолит
Год постройки:1996
5 этаж
5 всего
59.3 м2
32.3 м2 жилая
10 м2 кухня
5760 т.р.
97.13 за м2
Поднять объявление Авторизуйтесь, чтобы добавить в избранное Авторизуйтесь, чтобы оставить заметку Авторизуйтесь, чтобы отправить объявление по почте Поделиться ссылкой
03 декабря 2025.     КОНТАКТ: Наталья     ТЕЛ: .     Алатарцев.Недвижимость
2-комнатную
квартиру
Александра Невского 3  (1)  Показать на панораме
Октябрьский район
кирпич
Год постройки:1995
3 этаж
6 всего
46.6 м2
30 м2 жилая
9 м2 кухня
5800 т.р.
124.46 за м2
Поднять объявление Авторизуйтесь, чтобы добавить в избранное Авторизуйтесь, чтобы оставить заметку Авторизуйтесь, чтобы отправить объявление по почте Поделиться ссылкой
10 ноября 2025.     КОНТАКТ: Султан     ТЕЛ: .    
3-комнатную
квартиру
Мичурина 95  (1)  Показать на панораме
Октябрьский район
панель
Год постройки:1971
2 этаж
5 всего
58.6 м2
43.8 м2 жилая
6 м2 кухня
5600 т.р.
95.56 за м2
Поднять объявление Авторизуйтесь, чтобы добавить в избранное Авторизуйтесь, чтобы оставить заметку Авторизуйтесь, чтобы отправить объявление по почте Поделиться ссылкой
05 декабря 2025.     КОНТАКТ:     ТЕЛ: .     Вквадрате
3-комнатную
квартиру
Сергея Лазо 18  (2)  Показать на панораме
Октябрьский район
кирпич
Год постройки:1982
5 этаж
9 всего
60 м2
36 м2 жилая
5600 т.р.
93.33 за м2
Поднять объявление Авторизуйтесь, чтобы добавить в избранное Авторизуйтесь, чтобы оставить заметку Авторизуйтесь, чтобы отправить объявление по почте Поделиться ссылкой
03 декабря 2025.     КОНТАКТ: Ксения     ТЕЛ: .     Наше, агентство недвижимости
Добавить объявление
Недвижимоcть на карте
Поиск по критериям +474 9026

ПРОДАЮ

ОБМЕН

СДАЮ

СПЕЦИАЛЬНЫЕ ПРЕДЛОЖЕНИЯ (53)

Агентства недвижимости 

Самолет плюс - центр Томск

Предложений:286

Алатарцев.Недвижимость

Предложений:770

Грасиона

Предложений:17

Компания ЭТАЖИ

Предложений:941

ТДСК Инвест

Предложений:54

Агама

Предложений:32

Жилфонд

Предложений:270