|
|
реклама
Рекламодатель: ООО "УК "КонтинентЪ", ИНН 7017208000 ИД креатива: LdtCKW5Ps

| |
|
Продам 3-комнатную квартиру
|
 |
|
|
|
Объявление № 5169706
|
|
|
|
|
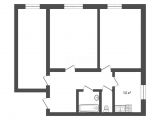
| Количество комнат |
3 |
| Общая площадь |
78.7 кв.м |
| жилая |
69 кв.м |
| кухня |
5 кв.м |
| Этаж/этажность |
1/2 |
| Отделка |
в хорошем состоянии |
| Санузел |
совмещенный |
|
|
|
Яковлева 14/1 (2)  | | Октябрьский район |
| Этажность |
2 |
| Год постройки |
1954 |
| Вид |
вторичное |
|
|
|
| Описание |
|
Продается большая, светлая, очень теплая 3х-комнатная квартира в 2х этажном кирпичном доме на высоком первом этаже. В квартире высокие потолки, что дает любой комнате много пространства, воздуха и света, а тем более этой к которой целых 78 кв.м. В доме все друг друга знают и дружат, поэтому было организовано самоуправление и сами жители успешно справляются с текущем ремонтом, уборкой дома и придомовой территории. Ремонт был давно, но квартира чистая и ухоженная, срочного ремонта не требует, если только захотите сами что-то обновить. Подарком будет теплое и сухое подвальное помещение, площадью в 50 кв.м., которое можно использовать для хранения вещей. А так же остается почти вся мебель. Инфраструктура района и транспортная доступность позволяет сравнить расположение с центром, а так же есть возможность без проблем добраться в любую точку города. Есть рядом сад, школа и все магазины. Не упустите возможность жить в благоустроенном, практически частном доме но в центре города! Код пользователя: 192420 Номер в базе: 10403166 |
| Условия |
|
|
6 900 000 руб.
|
(87 670 руб. за м2).
|
|

|

|
Объявление № 5169706
Статистика
|
|
| Опубликовал: |
ries_etagi |
| Опубликовано: |
12 декабря 2025 |
| Истекает: |
26 января 2026 |
| Статус: |
Опубликовано
|
|
|
 |
|
|
 |
|
|
|
|
|
3-комнатную квартиру | Пушкина 37 (1)  Октябрьский район панель Год постройки:1982 | 1 этаж 9 всего | 64.6 м2 30 м2 жилая 11 м2 кухня | 6980 т.р. 108.05 за м2 |
|
|
|
Опубликовано сегодня.
КОНТАКТ: Алена
ТЕЛ:
.
Алатарцев.Недвижимость
|
 |
|
|
|
3-комнатную квартиру | Говорова 20 (1)  Ленинский район панель Год постройки:1974 | 3 этаж 5 всего | 58.7 м2 43.5 м2 жилая 7.2 м2 кухня | 6700 т.р. 114.14 за м2 |
|
|
|
08 декабря 2025.
КОНТАКТ: Татьяна Николаевна Кобелева
ТЕЛ:
.
Города, агентство недвижимости
|
 |
|
|
|
3-комнатную квартиру | Говорова 20 (1)  Ленинский район Год постройки:1974 | 3 этаж 5 всего | 59 м2 47 м2 жилая 7.5 м2 кухня | 6750 т.р. 114.41 за м2 |
|
|
|
05 декабря 2025.
КОНТАКТ: Крутихина Лилия Валерьевна
ТЕЛ:
.
Компания ЭТАЖИ
|
 |
|
|
|
1-комнатную квартиру | Якимовича 2 (2)  Октябрьский район кирпич Год постройки:1999 | 7 этаж 7 всего | 42 м2 16 м2 жилая 11 м2 кухня | 6800 т.р. 161.9 за м2 |
|
|
|
02 декабря 2025.
КОНТАКТ:
ТЕЛ:
.
|
 |
|
|
|
2-комнатную квартиру | Яковлева 2/1 (3)  Октябрьский район кирпич Год постройки:1994 | 3 этаж 7 всего | 50.4 м2 30 м2 жилая 8.9 м2 кухня | 6900 т.р. 136.9 за м2 |
|
|
|
01 декабря 2025.
КОНТАКТ: Кобелева Татьяна Николаевна
ТЕЛ:
.
Города, агентство недвижимости
|
 |
|
Недвижимоcть на карте
 |
 |
Поиск по критериям |
+427 |
 |
9095 |
 |
|
|
|
 |
реклама

|
|
|
 |
|
Предложений:285
|
|
|
Предложений:770
|
|
|
Предложений:17
|
|
|
Предложений:908
|
|
|
Предложений:55
|
|
|
Предложений:32
|
|
|
Предложений:273
|
| |
|
|
|
|
 |
|
 |
|