|
|
реклама
Рекламодатель: ООО "УК "КонтинентЪ", ИНН 7017208000 ИД креатива: LdtCKW5Ps

| |
|
Продам 3-комнатную квартиру
|
 |
|
|
|
Объявление № 5169272
|
|
|
|
|
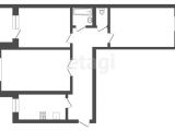
| Количество комнат |
3 |
| Общая площадь |
84 кв.м |
| жилая |
65 кв.м |
| кухня |
14 кв.м |
| Этаж/этажность |
5/7 |
| Отделка |
в хорошем состоянии |
| Санузел |
совмещенный |
| Балкон/лоджия |
балкон |
|
|
|
Больничная 8а (4)  | | Октябрьский район |
| Этажность |
7 |
| Материал |
кирпич |
| Год постройки |
2009 |
| Вид |
вторичное |
|
|
|
| Описание |
|
Продаётся 3-х комнатная квартира в хорошем состоянии. Общая площадь 84 кв.м.+ лоджия 7 кв.м. Тёплые полы по всей квартире. Остаётся мебель и бытовая техника. Дом расположен в центре города в тихом месте, вдали от шумных улиц. Развитая инфраструктура. Придомовая территория оборудована парковочными местами и детской площадкой. Все необходимое рядом: магазины, супермаркеты, аптеки, школы и дошкольные учреждения, остановки общественного транспорта. Для отдыха и прогулок в шаговой доступности Белое озеро, Михайловская роща. Рядом детские сады, школы, гимназия, ТГАСУ. Супермаркеты: Абрикос, Магнит, Пятёрочка, Ярче. Код пользователя: 190383 Номер в базе: 8847996 |
| Условия |
|
|
12 500 000 руб.
|
(148 810 руб. за м2).
|
|

|

|
Объявление № 5169272
Статистика
|
|
| Опубликовал: |
ries_etagi |
| Опубликовано: |
11 декабря 2025 |
| Истекает: |
18 января 2026 |
| Статус: |
Опубликовано
|
|
|
 |
|
|
 |
|
|
|
|
|
3-комнатную квартиру | Больничная 8а (4)  Октябрьский район кирпич Год постройки:2009 | 5 этаж 7 всего | 84 м2 50 м2 жилая 14 м2 кухня | 12600 т.р. 150 за м2 |
|
|
|
14 декабря 2025.
КОНТАКТ: Собственник
ТЕЛ:
.
|
 |
|
|
|
3-комнатную квартиру | Пушкина 61/10 усл (4)  Октябрьский район монолит | 1 этаж 10 всего | 77.5 м2 51.2 м2 жилая 9.8 м2 кухня | 12693.322 т.р. 163.78 за м2 |
|
|
|
13 ноября 2025.
КОНТАКТ: Менеджер отдела продаж
ТЕЛ:
.
1&3
|
 |
|
|
|
3-комнатную квартиру | Пушкина 22 (3)  Октябрьский район кирпич Год постройки:1994 | 3 этаж 6 всего | 80 м2 64 м2 жилая 12 м2 кухня | 12400 т.р. 155 за м2 |
|
|
|
10 декабря 2025.
КОНТАКТ: Алексей
ТЕЛ:
.
Жилфонд
|
 |
|
|
|
3-комнатную квартиру | Карла Ильмера 10/3 (3)  Ленинский район кирпич | 3 этаж 9 всего | 76 м2 50 м2 жилая 10 м2 кухня | 12500 т.р. 164.47 за м2 |
|
|
|
18 декабря 2025.
КОНТАКТ: Оксана
ТЕЛ:
.
|
 |
|
Недвижимоcть на карте
 |
 |
Поиск по критериям |
+290 |
 |
9014 |
 |
|
|
|
 |
реклама

|
|
|
 |
|
Предложений:287
|
|
|
Предложений:767
|
|
|
Предложений:19
|
|
|
Предложений:888
|
|
|
Предложений:55
|
|
|
Предложений:34
|
|
|
Предложений:274
|
| |
|
|
|
|
 |
|
 |
|