облачность, ветер: 3 м/c, ЮЗ, давление: 2 мм рт.ст., влажность: 33% -14°
Сделать стартовой

Продам 2-комнатную квартиру

Объявление № 5169216    
Квартира

Количество комнат  2
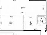
Общая площадь  70.5 кв.м
жилая  49.6 кв.м
кухня  20 кв.м
Этаж/этажность  2/10
Отделка  в хорошем состоянии
в здании

Розы Люксембург 81  (7)  Показать на панораме
Ленинский район
Этажность  10
Материал  кирпич
Год постройки  2012
Вид  вторичное
Описание

В продаже современный вариант 2 комнатной студии в центре города.Дом кирпичный 2012 года постройки.Общая площадь без учета лоджии 70, 5 кв.м., была перепланирована из классической 2 комнатной планировки, все узаконено.Площадь кухни-гостиной  -34 кв.м., спальня 15, 6 кв.м. , очень просторная прихожая.По договоренности можно обсудить продажу со всем что есть в квартире.Подробности по телефону, приходите смотреть !
Карта     Показать панораму

Уменьшить
Увеличить
Условия

8 500 000 руб.
  (120 570 руб. за м2).

Контактная информация

Контактное лицо: Алена

Телефон:

Алатарцев.Недвижимость, агентство недвижимости

Объявление № 5169216     Статистика

Опубликовал: Rimma2000
Опубликовано: 10 декабря 2025
Истекает: 27 января 2026
Статус: Опубликовано Опубликовано
Поделиться

Похожие варианты (12) На карте

2-комнатную
квартиру
Николая Островского переулок 23  (11)
Октябрьский район
Год постройки:2014
3 этаж
10 всего
57 м2
46 м2 жилая
6 м2 кухня
8700 т.р.
152.63 за м2
Поднять объявление Авторизуйтесь, чтобы добавить в избранное Авторизуйтесь, чтобы оставить заметку Авторизуйтесь, чтобы отправить объявление по почте Поделиться ссылкой
15 декабря 2025.     КОНТАКТ: Альпидовский Дмитрий Анатольевич     ТЕЛ: .     Компания ЭТАЖИ
2-комнатную
квартиру
Набережная Озера 22  (9)
Ленинский район
кирпич
Год постройки:2015
10 этаж
16 всего
50.7 м28500 т.р.
167.65 за м2
Поднять объявление Авторизуйтесь, чтобы добавить в избранное Авторизуйтесь, чтобы оставить заметку Авторизуйтесь, чтобы отправить объявление по почте Поделиться ссылкой
13 октября 2025.     КОНТАКТ: Алексей     ТЕЛ: .    
2-комнатную
квартиру
Большая Подгорная 40  (2)  Показать на панораме
Ленинский район
кирпич
2 этаж
6 всего
75.4 м2
15 м2 кухня
8690 т.р.
115.25 за м2
Поднять объявление Авторизуйтесь, чтобы добавить в избранное Авторизуйтесь, чтобы оставить заметку Авторизуйтесь, чтобы отправить объявление по почте Поделиться ссылкой
05 декабря 2025.     КОНТАКТ: Юлия     ТЕЛ: .     Союз Риэлторов
2-комнатную
квартиру
Ленина проспект 199  (1)  Показать на панораме
Ленинский район
кирпич
Год постройки:1999
8 этаж
10 всего
58 м2
10 м2 кухня
8299 т.р.
143.09 за м2
Поднять объявление Авторизуйтесь, чтобы добавить в избранное Авторизуйтесь, чтобы оставить заметку Авторизуйтесь, чтобы отправить объявление по почте Поделиться ссылкой
03 ноября 2025.     КОНТАКТ: Елена     ТЕЛ: .    
2-комнатную
квартиру
Ленина проспект 199  (1)  Показать на панораме
Ленинский район
кирпич
Год постройки:1999
8 этаж
10 всего
59 м28300 т.р.
140.68 за м2
Поднять объявление Авторизуйтесь, чтобы добавить в избранное Авторизуйтесь, чтобы оставить заметку Авторизуйтесь, чтобы отправить объявление по почте Поделиться ссылкой
01 декабря 2025.     КОНТАКТ: Здорнова Оксана     ТЕЛ: .     Города, агентство недвижимости
Добавить объявление
Недвижимоcть на карте
Поиск по критериям +426 9071

ПРОДАЮ

ОБМЕН

СДАЮ

СПЕЦИАЛЬНЫЕ ПРЕДЛОЖЕНИЯ (53)

Агентства недвижимости 

Самолет плюс - центр Томск

Предложений:286

Алатарцев.Недвижимость

Предложений:770

Грасиона

Предложений:17

Компания ЭТАЖИ

Предложений:940

ТДСК Инвест

Предложений:55

Агама

Предложений:32

Жилфонд

Предложений:273