|
|
реклама
Рекламодатель: ООО "УК "КонтинентЪ", ИНН 7017208000 ИД креатива: LdtCKW5Ps

| |
|
Продам 3-комнатную квартиру
|
 |
|
|
|
Объявление № 5162156
|
|
|
|
|
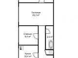
| Количество комнат |
3 |
| Общая площадь |
72.9 кв.м |
| жилая |
47.6 кв.м |
| кухня |
10.4 кв.м |
| Этаж/этажность |
1/9 |
| Отделка |
в хорошем состоянии |
| Санузел |
раздельный |
|
|
|
Мокрушина 20/1 (1)  | | Кировский район |
| Этажность |
9 |
| Материал |
кирпич |
| Год постройки |
1981 |
| Вид |
вторичное |
|
|
|
| Описание |
|
3-комнатная квартира с отдельным входом. Этаж: 1/2 (расположена в 2-этажной части дома). Отдельный вход. Площадь 73 кв. м. Кухня квадратная 10, 5 кв. м. – можно также сделать дополнительную зону отдыха. Спальня 9, 4 кв. м. Гостиная 20, 3 кв. м. проходная. Спальня 18 кв. м. Санузел раздельный, выложен кафелем. Установлен бойлер. В зоне прихожей установлен шкаф-купе. В санузле, кухне и коридоре теплые полы.
В 5 минутах магазин «Абрикос», аптека, остановка общественного транспорта (автобус 24, 120). В 5 минутах школа № 49, Детский сад №62. Заинтересовал данный вариант? Записывайся на просмотр! Стоимость 5900 тыс. руб.
|
| Условия |
|
|
5 900 000 руб.
|
(80 930 руб. за м2).
|
|

|

|
Объявление № 5162156
Статистика
|
|
| Опубликовал: |
rieltpark |
| Опубликовано: |
13 ноября 2025 |
| Истекает: |
28 декабря 2025 |
| Статус: |
Опубликовано
|
|
|
 |
|
|
 |
|
|
|
|
|
3-комнатную квартиру | Мокрушина 20 (1)  Кировский район Год постройки:1975 | 2 этаж 5 всего | 61.9 м2 44.9 м2 жилая 5.5 м2 кухня | 6000 т.р. 96.93 за м2 |
|
|
|
08 декабря 2025.
КОНТАКТ: Симиренко Мария Владимировна
ТЕЛ:
.
Компания ЭТАЖИ
|
 |
|
|
|
3-комнатную квартиру | Ботанический переулок 12 (1)  Кировский район панель Год постройки:1991 | 2 этаж 5 всего | 62.4 м2 45 м2 жилая 7 м2 кухня | 5900 т.р. 94.55 за м2 |
|
|
|
26 октября 2025.
КОНТАКТ: Сергей
ТЕЛ:
.
|
 |
|
|
|
2-комнатную квартиру | Мокрушина 22 (1)  Кировский район кирпич Год постройки:1977 | 8 этаж 10 всего | 49.8 м2 8 м2 кухня | 5800 т.р. 116.47 за м2 |
|
|
|
20 ноября 2025.
КОНТАКТ: Ольга
ТЕЛ:
.
|
 |
|
|
|
1-комнатную квартиру | Нефтяная 5 (6) Кировский район панель Год постройки:2015 | 17 этаж 17 всего | 35 м2 18 м2 жилая 7.5 м2 кухня | 6000 т.р. 171.43 за м2 |
|
|
|
16 декабря 2025.
КОНТАКТ:
ТЕЛ:
.
ТомьГрадЪ
|
 |
|
|
|
1-комнатную квартиру | Елизаровых 15/1 (11) Кировский район монолит Год постройки:2015 | 7 этаж 18 всего | 37.6 м2 27 м2 жилая | 5999 т.р. 159.550 за м2 |
|
|
|
04 декабря 2025.
КОНТАКТ: Наталья
ТЕЛ:
.
Алатарцев.Недвижимость
|
 |
|
Недвижимоcть на карте
 |
 |
Поиск по критериям |
+474 |
 |
9026 |
 |
|
|
|
 |
реклама

|
|
|
 |
|
Предложений:286
|
|
|
Предложений:770
|
|
|
Предложений:17
|
|
|
Предложений:941
|
|
|
Предложений:54
|
|
|
Предложений:32
|
|
|
Предложений:270
|
| |
|
|
|
|
 |
|
 |
|