|
|
реклама
Рекламодатель: ООО "УК "КонтинентЪ", ИНН 7017208000 ИД креатива: LdtCKW5Ps

| |
|
Продам 4-комнатную квартиру
|
 |
|
|
|
Объявление № 5152058
|
|
|
|
|
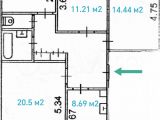
| Количество комнат |
4 |
| Общая площадь |
79.9 кв.м |
| жилая |
54.18 кв.м |
| кухня |
8.69 кв.м |
| Этаж/Этажность |
1/5 |
| Отделка |
требуется ремонт |
| Санузел |
раздельный |
|
|
| Описание |
|
В продаже просторная 4-х комнатная квартира, которой требуется ремонт. Квартира распашной планировки, все комнаты изолированные, с/у и ванная комната раздельные. Параметры комнат можно увидеть на техническом плане. Расположение дома комфортное и удобное: напротив дома лицей №7, детский сад, различные развивающие занятия для детей, в пешей доступности магазины на любой ассортимент, рядом остановки общественного транспорта, медицинские учреждения.
Квартира так же подходит под коммерческую недвижимость, 1 этаж позволяет осуществить разные проекты для бизнеса.
Освобождена, готова к новым собственникам. Просмотры по предварительной записи. |
| Условия |
|
|
6 200 000 руб.
|
(77 600 руб. за м2). Торг. Ипотека. Материнский капитал. Приватизированная. Документы готовы.
|
|

|

|
Объявление № 5152058
Статистика
|
|
| Опубликовал: |
valeevann |
| Опубликовано: |
21 декабря 2025 |
| Истекает: |
04 февраля 2026 |
| Статус: |
Опубликовано
|
|
|
|
Недвижимоcть на карте
 |
 |
Поиск по критериям |
+1 |
 |
8865 |
 |
|
|
|
 |
реклама

|
|
|
 |
|
Предложений:267
|
|
|
Предложений:767
|
|
|
Предложений:19
|
|
|
Предложений:938
|
|
|
Предложений:55
|
|
|
Предложений:30
|
|
|
Предложений:267
|
| |
|
|
|
|
 |
|
 |
|