|
|
реклама
Рекламодатель: ООО "УК "КонтинентЪ", ИНН 7017208000 ИД креатива: LdtCKW5Ps

| |
|
Продам 2-этажный кирпичный коттедж
|
|
|
|
|
Объявление № 5132232
|
|
|
|
|
| пос. Казанка | | Томский район |
| Отделка |
черновая отделка |
| Общая площадь |
117 кв.м |
| Площадь участка |
9.5 сот |
| Этажность |
2 |
| Материал |
кирпич |
| Вид |
новостройка |
| Тип дома |
коттедж |
|
 |
| Есть пластиковые окна. |
| Есть центральные коммуникации: электричество. |
| Описание |
|
Собственник. Продается индивидуальный 3-х комнатный 2-х этажный жилой дом в деревне Казанка. Деревня Казанка находится на берегу реки Томи на юге Томского района, в 18 километрах от пл. Южной, трасса Томск – с. Яр. Рядом расположены с. Коларово, достопримечательностью которого является Спасский храм; Синий утес - излюбленное место отдыха томичей. Совсем рядом построен горнолыжный парк «Эдельвейс». Рядом с домом детская площадка.
Площадь земельного участка 9, 5 сот; Общая площадь дома = 117, 8 м2 (площадь 1-го этажа = 58, 7 м2; площадь 2-го этажа = 59, 1 м2); площадь балкона 4, 7 м2. Гараж металлический обшитый сэндвич панелями (теплый) 4 х 11 м.
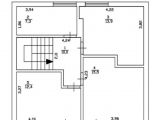
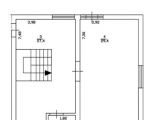
Дом без подвала, прямоугольный в плане, габаритными размерами 8, 74 х 9, 5 м, высота помещений 1-го этажа – 2, 75 м, высота помещений 2-го этажа – 2, 75 м.
1 этаж: тамбур, прихожая-холл, котельная, гостевой туалет, гостиная-столовая-кухня, лестница. 2 этаж: 3 спальные комнаты, ванная.
Связь между уровнями осуществляется по внутриквартирной лестнице (временная деревянная). Отделка помещений : черновая; можем сделать предчистовую и чистовую. Ограждение участка: забор. Водоснабжение: скважина. Канализация: септик. Внутренние сети водоснабжения и канализации: - Отопление: электрическое. Наружные сети электроснабжения: счетчик на уличном столбе. Внутренние сети электроснабжения: –
Трейд-ин! Рассрочка без процентов!
|
| Условия |
|
|
14 000 000 руб.
|
(119 660 руб. за м2).
|
|

| Контактная информация |
|
| Контактное лицо: |
Светлана |
|
|
|
|
|
|
Агентство
|
|

|
Объявление № 5132232
Статистика
|
|
| Опубликовал: |
karnaukhova |
| Опубликовано: |
18 декабря 2025 |
| Истекает: |
01 февраля 2026 |
| Статус: |
Опубликовано
|
|
|
|
Недвижимоcть на карте
 |
 |
Поиск по критериям |
+337 |
 |
9049 |
 |
|
|
|
 |
реклама

|
|
|
 |
|
Предложений:287
|
|
|
Предложений:767
|
|
|
Предложений:19
|
|
|
Предложений:916
|
|
|
Предложений:55
|
|
|
Предложений:34
|
|
|
Предложений:277
|
| |
|
|
|
|
 |
|
 |
|