|
|
реклама
Рекламодатель: ООО "УК "КонтинентЪ", ИНН 7017208000 ИД креатива: LdtCKW5Ps

| |
|
Продам 2-комнатную квартиру
|
 |
|
|
|
Объявление № 5119076
|
|
|
|
|
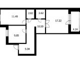
| Количество комнат |
2 |
| Общая площадь |
58.5 кв.м |
| кухня |
11.49 кв.м |
| Этаж/этажность |
3/4 |
| Отделка |
в хорошем состоянии |
| Санузел |
раздельный |
| Балкон/лоджия |
лоджия, остекление |
|
|
| Описание |
|
Продается двухкомнатная по адресу: д. Кисловка, улица Анны Ахматовой, дом 7, общая площадь жилья составляет 58, 5 квадратных метров, квартира находится на третьем этаже четырехэтажного кирпичного здания. Внутренняя планировка квартиры предусматривает возможность сделать перепланировку в евро-трёшку просторную кухню-гостиную, две спальни и уютную ванную комнату. В окрестностях есть хорошо развитая инфраструктура, что делает проживание здесь очень комфортным и удобным. Вам будет легко добраться до магазинов, аптек, кафе, а также Губернаторского Светлинского лицея и трех детских садов — это существенное преимущество для семей с детьми. Кроме того, рядом расположены спортивные клубы, что позволяет поддерживать активный образ жизни и заботиться о здоровье. Покупка данной квартиры — это отличная инвестиция в ваше будущее, независимо от того, планируете ли вы жить здесь или сдавать в аренду. Не упустите шанс стать владельцем этого замечательного жилья — звоните с 09: 00 до 19: 00 и запишитесь на просмотр!!! Ключи в агентстве!!!
|
| Условия |
|
|
7 950 000 руб.
|
(135 900 руб. за м2). Ипотека. Материнский капитал. Приватизированная. Документы готовы.
|
|

|

|
Объявление № 5119076
Статистика
|
|
| Опубликовал: |
Vladimir87 |
| Опубликовано: |
01 декабря 2025 |
| Истекает: |
15 января 2026 |
| Статус: |
Опубликовано
|
|
|
|
Недвижимоcть на карте
 |
 |
Поиск по критериям |
+130 |
 |
8783 |
 |
|
|
|
 |
реклама

|
|
|
 |
|
Предложений:263
|
|
|
Предложений:746
|
|
|
Предложений:19
|
|
|
Предложений:855
|
|
|
Предложений:53
|
|
|
Предложений:32
|
|
|
Предложений:260
|
| |
|
|
|
|
 |
|
 |
|